7800
Sök

Mekgarage i Malmö skapas

1 Inlägg
29 augusti 2008
Trådstartare
#1
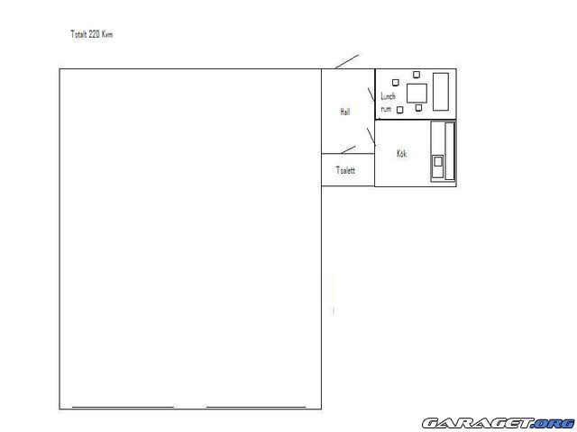
Gemensamt garage för hobbyverksamhet. 220 Kvm mycket centralt i Malmö (nära Värnhem). Högt i tak, 5 m. Lyft får installeras. 6 st mycket stora platser för bil eller 10 mindre. Plats för motorcyklar (halv mindre bilplats per st tex). Lokalen behöver målas invändigt för toppskick och uthyraren står för kostnad av material. Lokalen har egen parkering utanför så alla kan ha med egen bil utanför. Halvt ovan jord. Inkörsportar markplan. Fokus på hög säkerhetsnivå såväl yttre som inre.

Stor bilplats ~2000:-
Liten bilplats ~1200:-
Motorcykel ~600:-

Alla kostnader delas lika inför uthyraren (600-700 kr per kvm per år).
Ordnad ekonomi (inga betalningsanmärkningar)
och en trevlig inställning. Maila lite om vem du är och vad du vill göra i garaget. Skicka gärna med telefonnummer.
Välkommen!!

(Det finns begränsat antal platser men alla har chans ännu till plats tills det är fullt. Sedan väntelista.)

Nu är det 60% fullt. Det finns 2 stora bilplatser kvar (eller 4 små bilplatser eller 8 MC).

https://www1.garaget.org/gallery/archive/97504/445354_qkpkiv.jpg


Sök