5507
Sök

Koppla "effektregleringsknapp" till sätesvärmare.

Försöker iaf
12 819 Inlägg
13 juli 2010
Trådstartare
#1
Tjenare.

I bilen min (audi 100 2.3E) så har jag sätesvärme i rysstöd och säte baktill. Detta är nog eftermonterat skulle jag tro, eller sätena har värme original men det är bytt säten i min bil så kabeldragningen är dålig samt finns bara on/off.

Nu har jag ju relän och knappar till sätesvärmen fram från en donatorbil, så jag undrar om det går att fixa så jag kan reglera värmen på sätet med hjälp av dessa eller är det on/off som gäller?

Jag känner att detta blev väldigt grötigt, men orkar inte formulera om..



Mvh Tommy

Ställ inte cykeln utanför stället, ställ den i stället istället.
Projekttråden - Handlar om en gammel Audi 100 2.3E och en Audi 100 Tqs. Typ44, det är kärlek det!

Motborgare
1 099 Inlägg
14 juli 2010
#2
Har du relän så gissar jag att du kan få två steg. Med säte och rygg kopplad i serie, och full fräs med säte och rygg i parallell. Kolla upp så att de tål att parallellkopplas.

-- K

Försöker iaf
12 819 Inlägg
14 juli 2010
Trådstartare
#3
Kavli skrev:
Har du relän så gissar jag att du kan få två steg. Med säte och rygg kopplad i serie, och full fräs med säte och rygg i parallell. Kolla upp så att de tål att parallellkopplas.

-- K

Hur kollar jag upp det? Tidigare gick det en pluskabel avsäkrad med 15A direkt från batteriet under baksätet till knapparna i mittkonsollen, där delade den sig från knapparna så det går att ha höger och vänster igång separat. Sen finns en hankontakt i ryggstödet som ska in i en honkontakt i sätesdelen.

Fanns alltså inga relän alls tidigare.




Mvh Tommy

Ställ inte cykeln utanför stället, ställ den i stället istället.
Projekttråden - Handlar om en gammel Audi 100 2.3E och en Audi 100 Tqs. Typ44, det är kärlek det!

Motborgare
1 099 Inlägg
14 juli 2010
#4
Okej. Så det är inte tre kablar som kommer ut från sätet? (Jord, slinga1, slinga2)
Det reläet som du har, har du kabelhärvan till sätena till den? Är det helt andra kontakter?

-- K

Försöker iaf
12 819 Inlägg
14 juli 2010
Trådstartare
#5
Kavli skrev:
Okej. Så det är inte tre kablar som kommer ut från sätet? (Jord, slinga1, slinga2)
Det reläet som du har, har du kabelhärvan till sätena till den? Är det helt andra kontakter?

-- K

Nix, svart och vit kabel, thats it. Det är helt andra kontakter.



Mvh Tommy

Ställ inte cykeln utanför stället, ställ den i stället istället.
Projekttråden - Handlar om en gammel Audi 100 2.3E och en Audi 100 Tqs. Typ44, det är kärlek det!

Motborgare
1 099 Inlägg
14 juli 2010
#6
Då är det nog av/på som gäller. Evt går det ju att reglera effekten med PWM eller resistiv strömbegränsning, fast då blir det ju ett hack.

-- K

Försöker iaf
12 819 Inlägg
14 juli 2010
Trådstartare
#7
Kavli skrev:
Då är det nog av/på som gäller. Evt går det ju att reglera effekten med PWM eller resistiv strömbegränsning, fast då blir det ju ett hack.

-- K

Okay, trodde funktionen satt i reläna? Det är alltså originalrelän från en likadan bil, bara att dom är till framsätena.




Mvh Tommy

Ställ inte cykeln utanför stället, ställ den i stället istället.
Projekttråden - Handlar om en gammel Audi 100 2.3E och en Audi 100 Tqs. Typ44, det är kärlek det!

Motborgare
1 099 Inlägg
14 juli 2010
#8
te_wik skrev:
Kavli skrev:
Då är det nog av/på som gäller. Evt går det ju att reglera effekten med PWM eller resistiv strömbegränsning, fast då blir det ju ett hack.

-- K

Okay, trodde funktionen satt i reläna? Det är alltså originalrelän från en likadan bil, bara att dom är till framsätena.




Mvh Tommy

Om "reläna" inte är riktiga relän, fast "mackapärer", så kan det vara så. När du skrev relä, så tänkte jag klassiska relän.

Vad har du för input till dessa "relän"? Multistegsbrytare, potentiometer, eller vad (Hur ser effektregleringsknappen ut)?

Har du nåt schema jag kan titta på? (Jag semestrar i Norge nu och har inte mitt bibliotek med mig)

-- K
Senast redigerat av Kavli (14 juli 2010)

Försöker iaf
12 819 Inlägg
14 juli 2010
Trådstartare
#9
Kavli skrev:
te_wik skrev:
Kavli skrev:
Då är det nog av/på som gäller. Evt går det ju att reglera effekten med PWM eller resistiv strömbegränsning, fast då blir det ju ett hack.

-- K

Okay, trodde funktionen satt i reläna? Det är alltså originalrelän från en likadan bil, bara att dom är till framsätena.




Mvh Tommy

Om "reläna" inte är riktiga relän, fast "mackapärer", så kan det vara så. När du skrev relä, så tänkte jag klassiska relän.

Vad har du för input till dessa "relän"? Multistegsbrytare, potentiometer, eller vad (Hur ser effektregleringsknappen ut)?

Har du nåt schema jag kan titta på? (Jag semestrar i Norge nu och har inte mitt bibliotek med mig)

-- K

Nä det är nog inte vanliga tillslags eller vad det heter, när man använder de främre värmarna så hör man att "reläet" klickar för varje läge 1-6 på knappen.

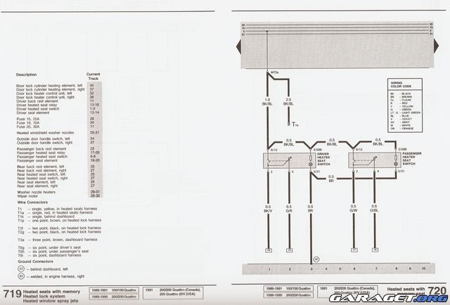
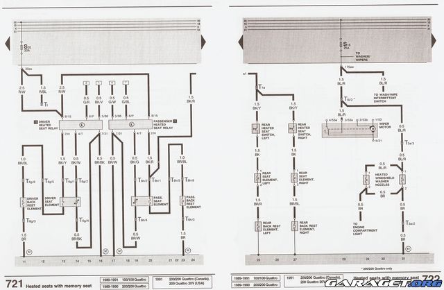
Jag har ett originalschema till främre i rephandboken som jag kan scanna in om det hjälper.


Mvh Tommy

Ställ inte cykeln utanför stället, ställ den i stället istället.
Projekttråden - Handlar om en gammel Audi 100 2.3E och en Audi 100 Tqs. Typ44, det är kärlek det!

Motborgare
1 099 Inlägg
14 juli 2010
#10
Scanna du bara.

-- K

Försöker iaf
12 819 Inlägg
14 juli 2010
Trådstartare
#11
Kavli skrev:
Scanna du bara.

-- K

Fixar det under morgondagen. Tack så länge.



Mvh Tommy

Ställ inte cykeln utanför stället, ställ den i stället istället.
Projekttråden - Handlar om en gammel Audi 100 2.3E och en Audi 100 Tqs. Typ44, det är kärlek det!

Försöker iaf
12 819 Inlägg
20 juli 2010
Trådstartare
#12
Sådär, sorry jag har haft lite problem med att få scannern att fungera.

https://www1.garaget.org/gallery/archive/27325/966859_rq5fmc.jpg
https://www1.garaget.org/gallery/archive/27325/966860_agcijg.jpg


På den sista sidan ser man ju att det egentligen bara är en knapp on/off till värmarna bak, men skulle det gå att koppla som fram?



Mvh Tommy

Ställ inte cykeln utanför stället, ställ den i stället istället.
Projekttråden - Handlar om en gammel Audi 100 2.3E och en Audi 100 Tqs. Typ44, det är kärlek det!


Sök